МОНОМАХ
Розрахунок та проектування залізобетонних та армокам'яних конструкцій багатоповерхових будівель
МОНОМАХ призначений для розрахунку та проектування конструкцій будівель з монолітного залізобетону, а також будівель з цегляними стінами. В процесі роботи виконується розрахунок будівлі та її окремих частин з формуванням робочих креслень та схем армування конструктивних елементів. МОНОМАХ (програма Мономах) незамінний для розрахунку конструкцій житлових та громадських багатоповерхових будівель. Програмний комплекс надає реальну допомогу при прийнятті проектних рішень, при розробці індивідуальних проектів (у тому числі із вільним плануванням приміщень), при великому обсязі проектних робіт, а також при експертній оцінці виконаних проектів.
|
|
Для прискорення створення моделі у програмі Мономах - КОМПОНОВКА передбачене використання планів, створених у AutoCAD, і моделей, створених в ArchiCAD. Особливо приваблюють користувачів високі темпи моделювання об'єкта в програмах КОМПОНОВКА, ПЛИТА, РОЗРІЗ (СТІНА) з подальшим експортом даних у LIRA-FEM, а також виконання креслень залізобетонних конструкцій. |
|
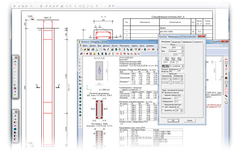
Комплекс складається з окремих програм - КОМПОНОВКА, БАЛКА, КОЛОНА, ФУНДАМЕНТ, ПІДПІРНА СТІНА, ПЛИТА, РОЗРІЗ (СТІНА), ЦЕГЛА, ҐРУНТ. Ці програми пов'язані інформаційно, крім того, кожна з них може працювати в автономному режимі.
|
|
Безліч компаній в Україні та за її кордонами, інститути, архітектурні майстерні та державні підприємства щодня вирішують завдання, розраховують проекти будівель та формують робочі креслення у програмному комплексі МОНОМАХ.










