Кам'яні та армокам'яні конструкції
Розрахунок кам'яних та армокам'яних конструкцій здійснюється за граничними станами першої та другої групи. На першому етапі розрахунку всі простінки проходять перевірку за формулами для розрахунку кам'яних конструкцій. Якщо простінок не проходить перевірку як кам'яний, тоді виконується підбір арматури і здійснюється перевірка простінка за формулами для розрахунку армокам'яних конструкцій. Розглядаються простінки будь-якої форми. Виконується аналіз роботи конструкції на дію горизонтального навантаження за СНиП II-22-81.
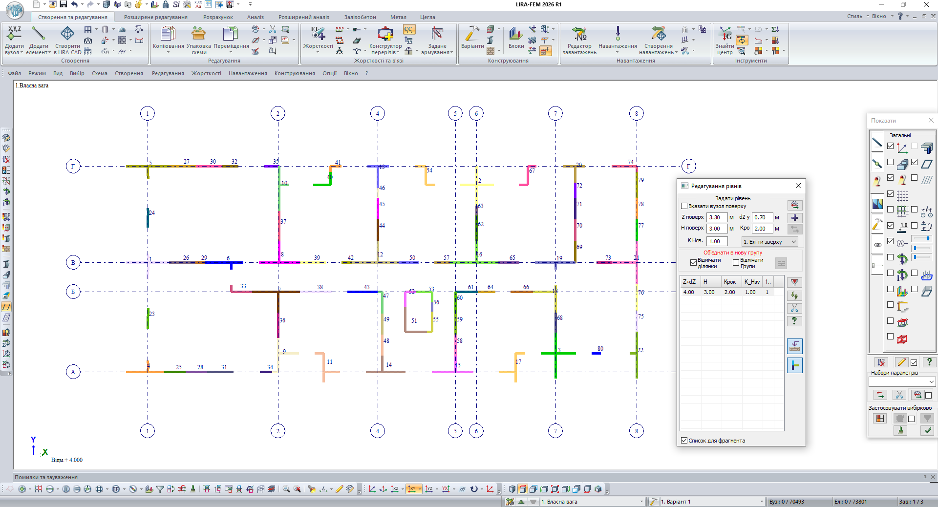
Схема будівлі та задання розрахункових рівнів для розрахунку армокам'яних конструкцій
Розрахункова схема будівлі створюється у графічному середовищі ВІЗОР, а при використанні повного технологічного ланцюжка проєктування (коли модель будівлі формується в LIRA-CAD) – в LIRA-CAD, КОНСТРУКЦІЇ. Користувач на етапі моделювання призначає за висотою будівлі потрібну кількість горизонтальних розрахункових рівнів армокам'яної кладки, в яких виконуватиметься перевірка її міцності (як правило, це рівні найменшого перерізу простінків, рівні спирання плит перекриттів тощо). При обчисленні зусиль модулем МСЕ розрахунку враховується спільна просторова робота несних мурованих та залізобетонних елементів будівлі. Для кожного рівня автоматично визначається конфігурація розрахункових перерізів простінків. Ділянки стін можуть довільно перерозподілятися корисувачем в межах сусідніх простінків, об'єднуватися в складні перерізи (кут, хрест, несиметричний тавр та більш складні) або, навпаки, розділятися. Навантаження на змінені простінки автоматично перераховуються за наявними результатами розрахунку. В процесі розрахунку кладки для кожного простінка визначається необхідна кількість арматурних сіток, за потреби виконується підбір стержнів вертикального армування.
Список реалізованих нормативів:
- СНиП II-22-81
- СП 15.13330.2020
- ДБН В.2.6-162:2010
Задання матеріалів для розрахунку армокам'яних конструкцій виконується за звичною схемою, такою як при заданні матеріалів залізобетонних чи металевих конструкцій. Матеріал мурування складається з таких компонентів: характеристики матеріалу кладки, характеристики арматури, характеристики зовнішнього підсилення простінків, і призначається на пластинні елементи, якими моделюються стіни. Якщо задається підсилення (сталева, залізобетонна, армована розчинна обойма), то виконуватиметься тільки перевірка міцності кладки. В рамках однієї задачі користувач має можливість створювати варіанти конструювання. Варіанти можуть відрізнятися нормами розрахунку, типом кладки, видом армування, матеріалами, конфігурацією простінків тощо. Міцність матеріалу кладки з цегли, каменів, блоків визначається за заданим класом чи маркою, враховується тип, марка розчину та інші параметри.
Задання матеріалів армокам'яних конструкцій
Мозаїки обчислених навантажень на простінки формуються як для окремих завантажень, так і для комбінацій розрахункових сполучень зусиль або навантажень. Крім мозаїк, навантаження на простінки можна представити у вигляді векторів, прикладених у центрі ваги кожного простінка, побудувати мозаїку погонних навантажень на простінки. Розглядаються складові навантажень Px, Py, Pz, Mx, My.
За результатами розрахунку кладки у випадку армування сітками формуються мозаїки кількості рядів кладки, через яку необхідно вкладати сітки, мозаїки діаметрів арматури сіток, мозаїки відсотків армування простінків сітками. Якщо для розрахунку був обраний варіант армування вертикальними стержнями або комбінований варіант (сітки та вертикальні стержні), то для простінків в кожному розрахунковому рівні представлені мозаїки необхідної кількості вертикальних стержнів, мозаїки діаметрів вертикальних стержнів, мозаїки відповідних відсотків вертикального армування простінків. З врахуванням підібранної арматури обчислюються коефіцієнти запасу міцності. Для окремих простінків можна отримати повну інформацію про нормативну та розрахункову міцність кладки, наводяться розрахункові параметри. Результати розрахунку оформлюються у вигляді таблиць.

